Дом №39 подъезд 1
- Объект: 4-секционный жилой дом ул. 17 Сентября, 39
Смотреть подъезд №2, подъезд №3, подъезд №4
Выберите квартиру на плане:
Подробная информация
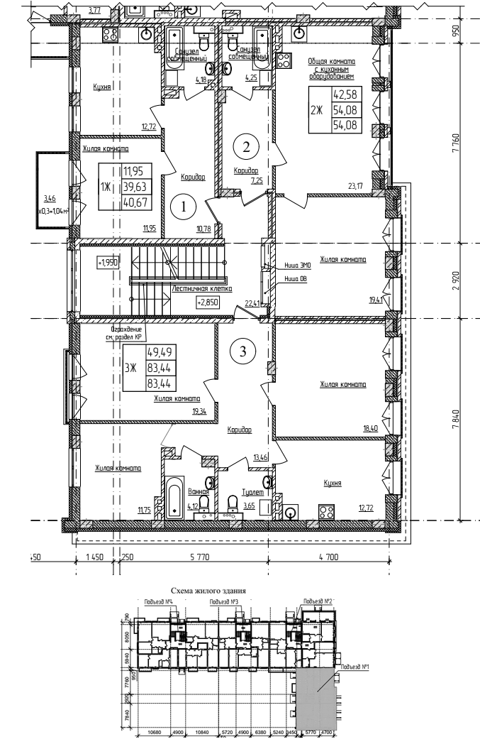
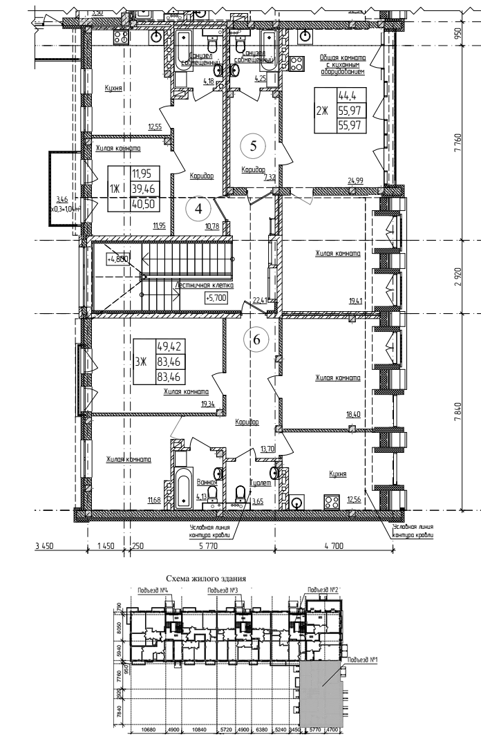
Жилое здание — позиция 3 (сложное в плане, часть здания вдоль улицы 17 Сентября)
- Четырехсекционное здание
- 3 (в т.ч. мансардный) и 4 этажа
- Встроенные помещения соцкультбыта (арендные)
- Безбарьерный доступ для посетителей
- 38 квартир
- 3 однокомнатных, 25 двухкомнатных, 8 трехкомнатных и 2 четырехкомнатных квартир
- Высота этажа квартир 2,85м; 3м.
- Запроектированы лифты в трех секциях
Четырехсекционное здание сложное в плане. Часть здания имеет 4 этажа и технический чердак (неотапливаемый), часть здания (вдоль улицы 17 Сентября) имеет 3 этажа, в т.ч. мансардный. Предусмотрено техподполье под всем зданием. В жилом здании запроектированы встроенные помещения соцкультбыта (арендные). Каждое арендное помещение имеет изолированные входы, а для посетителей предусмотрен безбарьерный доступ. Предусмотрено сохранение исторического облика существующих зданий, путем воссоздания четырех наружных стен главных фасадов зданий. В жилом доме размещено 38 квартир, инженерные помещения и комната уборочного инвентаря. Высота этажа квартир 2,85м; 3м. В качестве летних помещений предусмотрены балконы с металлическим ограждением, без остекления, «французские» балконы, терраса. В жилом доме запроектированы лифты в трех секциях.
Телефоны для связи: +375 33 399 1212, 80162 25 05 08
Визуализация дома:
Технико-экономические показатели:





